Гидравлическая анкерная буровая установка HT92-D (минимальное сечение: 2,8 м) предназначена для эффективной установки анкерных креплений в узких тоннелях и ограниченных подземных пространствах, таких как шахты по добыче металлов. Благодаря специализированной системе подачи установка может надежно работать в проемах размером от 2,8 × 2,8 м.
Машина оснащена передовой электро-гидравлической системой бурения с защитой от заклинивания, гарантируя высокую скорость бурения и стабильную производительность. Компактная и манёвренная конструкция улучшает подвижность в ограниченном пространстве, повышая безопасность и производительность работ под землёй.
| Буровая установка | Размеры поперечного сечения | 2800×2800-3500×3500мм |
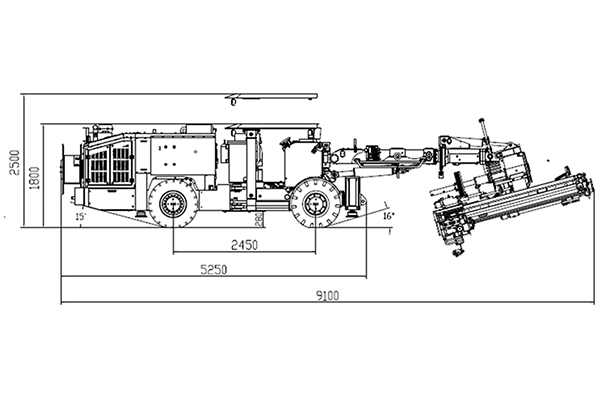
| Длина | 9100мм | |
| Ширина | 1500мм | |
| Высота (при опущенной крыше) | 1800мм | |
| Высота (при поднятой крыше) | 2500мм | |
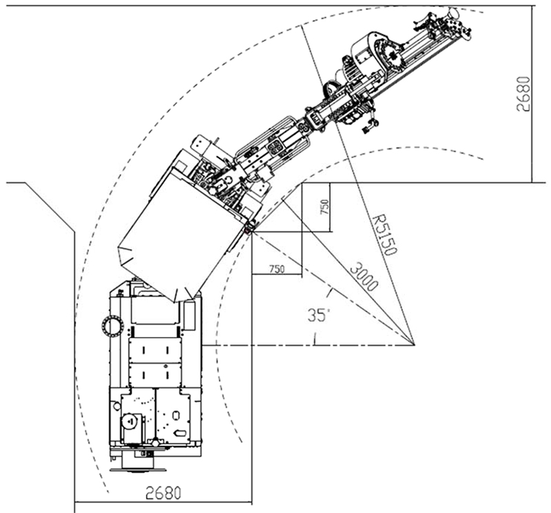
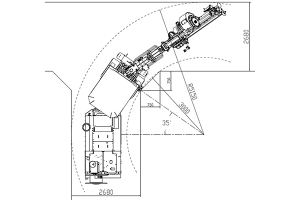
| GYTM412LD | Мин. радиус поворота | Внутри 3000 мм Снаружи 5150 мм |
| Преодолеваемый уклон | 14° | |
| Скорость движения | 3.8км/ч | |
| Общий вес | 12000кг | |
| Дорожный просвет | 280мм | |
| Гидравлический дрифтер | Модель | RC1200 |
| Ударная мощность | 14кВт | |
| Частота удара | 100Гц | |
| Макс. ударное давление | 180бар | |
| Система вращения | Независимое вращение | |
| Адаптер хвостовика | R32 | |
| Диаметр бурения | 32-45мм | |
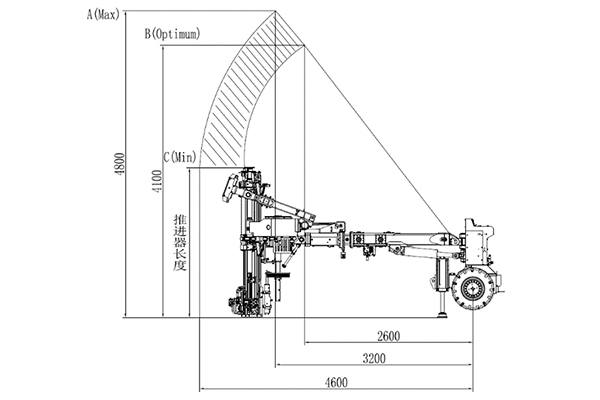
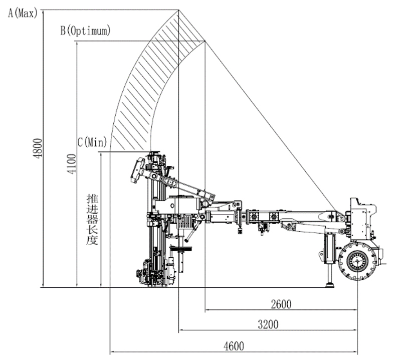
| Система подачи | Длина подачи | 2780мм |
| Раздельная трубка | 1800мм | |
| Рабочее давление | ≤10 МПа | |
| Усилие подачи | 10кН | |
| Угол наклона подачи | +80°-25° | |
| Угол поворота подачи | ±180° | |
| Компенсация подачи | 480мм | |
| Стрела | Угол наклона | +50° / -30° |
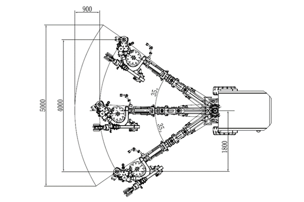
| Телескопическое выдвижение стрелы | 900мм | |
| Угол качания | ±35° | |
| Шасси | Двигатель | Дизельный двигатель Cummins (IV) |
| Номинальная выходная мощность (2400 об/мин) | 54кВт | |
| Крутящий момент | 320Н·м | |
| Угол качания заднего моста | 7° | |
| Угол поворота рулевого управления | ±35° | |
| Гидравлическая система | Удар/подача | 100 куб. см / 32 куб. см |
| Макс. объем масляного бака | 100л | |
| Фильтрация | 10 мкм | |
| Датчик уровня масла: имеется | ||
| Охладитель воды: имеется | ||
Huatai — китайская компания, специализирующаяся на разработке и серийном производстве бурового оборудования. С момента своего основания в 2000 году наша компания занимается производством бурового оборудования и обеспечением высочайшего уровня обслуживания клиентов для ряда предприятий, работающих в горнодобывающей, металлургической и фундаментостроительной отраслях.
Компания Huatai уже на протяжении 20 лет непрерывно привносит инноваций в область подземной добычи и бурения. Сегодня наша продуктовая линейка включает более 30 типов машин для бурения горных пород, которые можно разделить на три категории: оборудование для подземных горных работ, оборудование для добычи угля и буровые установки для бурения стволов. Годы нашего постоянного роста и совершенствования привели к значительным достижениям в китайской индустрии буровых машин, повышению безопасности, эффективности и рентабельности подземных горных работ и работ по строительству туннелей.
Буровая установка с вертикальным стволом серии GYSJZ – это высокопроизводительная буровая установка, которая идеально подходит для глубокого вертикального бурения в твердых породах. Оснащенная мощным 132-киловаттным двигателем и тремя гидравлическими приводами, она обеспечивает бурение диаметром от 4 до 6 метров.
Подробнее +
Буровая установка для бурения вала YSJZ специально разработана для строительства вертикальных стволов в шахтах по добыче железной руды и цветных металлов. Установка данного типа является отличной альтернативой для использования в горнодобывающих и подземных строительных проектах, где другие методы бурения не могут быть применены из-за их технических или экономических ограничений.
Подробнее +
Буровая установка с вертикальным стволом серии SJZ - это специальное оборудование для бурения взрывных скважин при строительстве вертикального ствола. Она подходит для широкого диапазона диаметров вала и отличается гибкостью эксплуатации, точным позиционированием и безопасностью.
Подробнее +
Специально разработанный для бурения в породах средней твёрдости, гидравлический перфоратор RC600 обеспечивает мощную и точную работу в широком спектре сложных задач. Благодаря прочной конструкции и универсальности он идеально подходит для поддерживающего бурения в подземных рудниках, установки анкерных болтов, строительства автомагистралей, мостов и сложных зданий.
Подробнее +