Гидравлическая буровая установка HT221 разработана для эффективной работы в стеснённых подземных пространствах, включая металлические рудники и узкие шахтные выработки. Обеспечивая зону охвата до 33 м², установка сочетает компактность с высокой производительностью благодаря современной полностью гидравлической системе бурения и встроенной защите от заклинивания, что обеспечивает более стабильную и быструю работу.
Интуитивное управление и высокая степень автоматизации снижают требования к квалификации персонала и способствуют плавной и надёжной работе. Широкий выбор конфигураций позволяет адаптировать HT221 под конкретные задачи и условия эксплуатации.
Компактные размеры и превосходная манёвренность облегчают передвижение в ограниченных пространствах, повышая безопасность, качество бурения и общую эффективность. HT221 — надёжное решение для тоннелестроения и подземных проектов, сочетающее мощность, управляемость и гибкость.
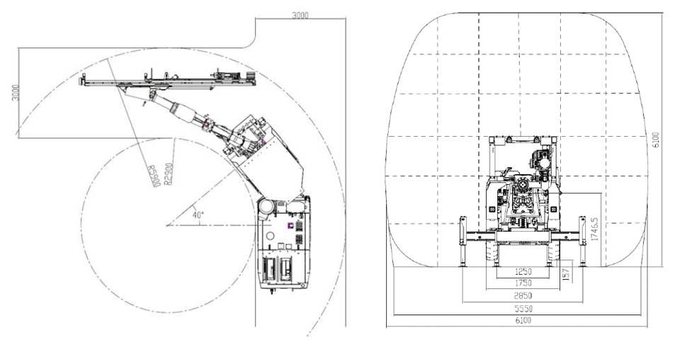
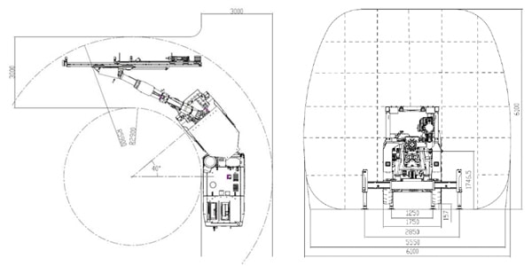
| Буровая установка | Зона покрытия бурения | 3000×3000—6600×6000 мм | |||
| Мин. радиус поворота | Внутри 2800 мм Снаружи 4900 мм | ||||
| Габариты | 11510×1750×2208(2918)мм | ||||
| Преодолеваемый уклон | 14° | ||||
| Дорожный просвет | 365 мм | ||||
| Масса | 13500 кг | ||||
| Буровой молот | Модель | RC2200 | YYG18U | YYG22U | HC95 ЛМА |
| Ударная мощность | 21 кВт | 18 кВт | 22 кВт | 21 кВт | |
| Частота удара | 55 Гц | 57 Гц | 53 Гц | 55 Гц | |
| Давление удара | 120-220 бар | 180-200бар | 180-200бар | 165-200бар | |
| Система вращения | Независимое вращение | ||||
| Длина бурового молота | 931мм | 1007 мм | 1007 мм | 987 мм | |
| Тип хвостовика | Т38 , Р38, Т45 | Т38 | Т38 | Т38, Р38 | |
| Подача | Общая длина | 5262/5972мм | 5450/6040 мм | 6040 мм | 5972мм |
| Длина буровой штанги | 3700/4305 мм | 3700/4305 мм | 4305 мм | 4305 мм | |
| Глубина бурения | 3370/3970 мм | 3370/3970 мм | 3970 мм | 3970 мм | |
| Усилие подачи | 13 кН | 13 кН | 13 кН | 13 кН | |
| Стрела | Компенсация подачи | 1250 мм | |||
| Горизонтальное бурение | Полное покрытие | ||||
| Угол поворота направляющей | ± 180° | ||||
| Угол наклона подачи | +90°/-5° | ||||
| Угол наклона стрелы | +60°/-30° | ||||
| Угол поворота стрелы | ±35° | ||||
| Масса стрелы | 2565 кг | ||||
| Телескопическое выдвижение стрелы | 1450 мм | ||||
| Система воздуха и воды | Макс. производительность насоса (12 бар) | 4 м³/ч | |||
| Емкость воздушного резервуара | 56л | ||||
| Вытеснение воздуха | 1м³/ч | ||||
| Мощность установки | 87,5 кВт | ||||
| Мощность главного двигателя | 75 кВт | ||||
| Напряжение | 380 В (настраивается) | ||||
| Гидравлическая система | Емкость масляного бака | 185 л | |||
| Фильтрация | 10 мкм | ||||
| Шасси | Марка/мощность двигателя | Двигатель Cummins (III), 74 кВт Двигатель Cummins (IV), 81 кВт Двигатель Cummins (V), 90 кВт | |||
| Емкость топливного бака | 60 л | ||||
Huatai — китайская компания, специализирующаяся на разработке и серийном производстве бурового оборудования. С момента своего основания в 2000 году наша компания занимается производством бурового оборудования и обеспечением высочайшего уровня обслуживания клиентов для ряда предприятий, работающих в горнодобывающей, металлургической и фундаментостроительной отраслях.
Компания Huatai уже на протяжении 20 лет непрерывно привносит инноваций в область подземной добычи и бурения. Сегодня наша продуктовая линейка включает более 30 типов машин для бурения горных пород, которые можно разделить на три категории: оборудование для подземных горных работ, оборудование для добычи угля и буровые установки для бурения стволов. Годы нашего постоянного роста и совершенствования привели к значительным достижениям в китайской индустрии буровых машин, повышению безопасности, эффективности и рентабельности подземных горных работ и работ по строительству туннелей.
Машина для ремонта угольных шахт WPZ-37/600 специально сконструирована для ремонта и обслуживания угольных шахт, в частности данная машина может быть использована для устранения завала на дорогах в шахтах. Она может быть оснащен гидравлическим отбойным молотком для эффективного дробления горных пород и угольных блоков.
Подробнее +
Буровая установка для бурения вала YSJZ специально разработана для строительства вертикальных стволов в шахтах по добыче железной руды и цветных металлов. Установка данного типа является отличной альтернативой для использования в горнодобывающих и подземных строительных проектах, где другие методы бурения не могут быть применены из-за их технических или экономических ограничений.
Подробнее +
Буровая установка с вертикальным стволом серии SJZ - это специальное оборудование для бурения взрывных скважин при строительстве вертикального ствола. Она подходит для широкого диапазона диаметров вала и отличается гибкостью эксплуатации, точным позиционированием и безопасностью.
Подробнее +
Буровая установка с вертикальным стволом серии GYSJZ – это высокопроизводительная буровая установка, которая идеально подходит для глубокого вертикального бурения в твердых породах. Оснащенная мощным 132-киловаттным двигателем и тремя гидравлическими приводами, она обеспечивает бурение диаметром от 4 до 6 метров.
Подробнее +