Гидравлическая буровая установка HT72 спроектирована для высокоэффективного бурения средних и глубоких скважин, особенно эффективна при бурении веерных и кластерных шпуров. Эта установка отлично подходит для тоннелей с малым поперечным сечением, обеспечивая исключительную манёвренность даже в узких подземных условиях.
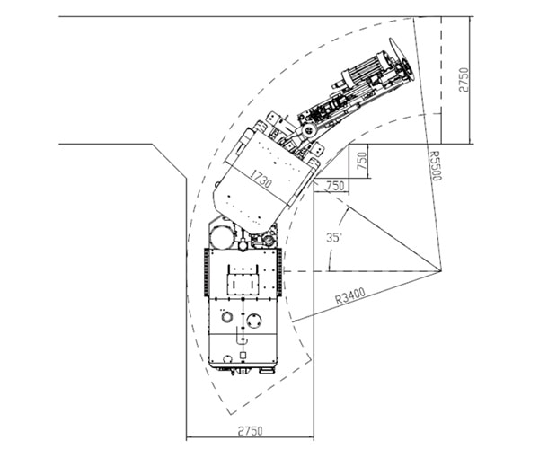
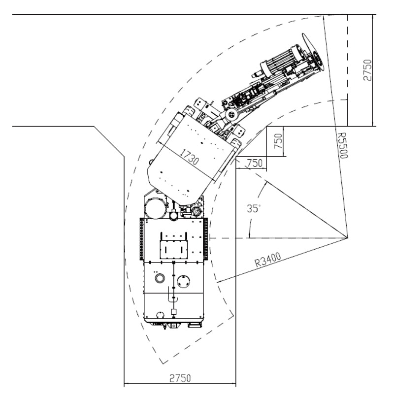
Оснащённая универсальной шарнирной стрелой с функциями поворота и поступательного движения, установка обеспечивает полный охват на 180° по горизонтали и вертикали. Это позволяет выполнять бурение больших площадей из одной позиции, что идеально для сложных многоугловых буровзрывных работ.
С учётом безопасности оператора установка оснащена усиленным козырьком для защиты от падающих пород, обеспечивая комплексную защиту на рабочей площадке. HT72 гарантирует безопасность персонала и поддерживает максимальную эффективность при выполнении сложных горных работ.
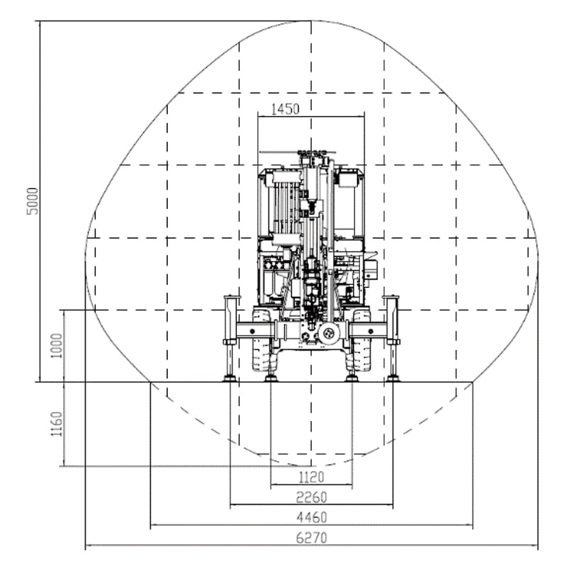
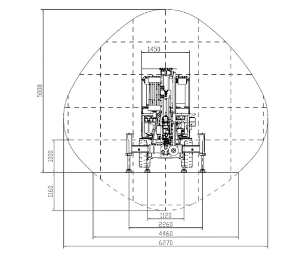
Подробности| Буровая установка | Бурение | 4000×4000мм—6100×6100 мм | |
| Габариты | 8700×1750×2140(2850) мм | ||
| Дорожный просвет | 320 мм | ||
| Мин. радиус поворота | Внутри 3400 мм Снаружи 5500 мм | ||
| Преодолеваемый уклон | 14° | ||
| Масса | 15000 кг | ||
| Буровой молот | Модель | YYG22U | HC95 |
| Ударная мощность | 22 кВт | 24 кВт | |
| Частота удара | 55 Гц | 57 Гц | |
| Давление удара | 180-220 бар | 200бар | |
| Система вращения | Независимое вращение | Независимое вращение | |
| Скорость вращения | 0-220 об/мин | 0-236 об/мин | |
| Макс. крутящий момент | 1000 Н·м | 764 Н·м | |
| Подача | Общая длина | 3000 мм | |
| Длина буровой штанги | 915 мм | ||
| Масса | 650 кг | ||
| Усилие подачи | 13 кН | ||
| Вместимость магазина штанг | 13/15 штанг | ||
| Макс. глубина бурения | 35000мм | ||
| Стрела | Компенсация подачи | 750 мм | |
| Угол вращения направляющей | ±180° | ||
| Угол поворота направляющей | ±180° | ||
| Угол наклона направляющей | Вниз 5°, вверх 95° | ||
| Угол подъема стрелы | +50°/-30° | ||
| Угол качания стрелы | ±35° | ||
| Телескопическое выдвижение стрелы | 1250 мм | ||
| Система сжатого воздуха | Модель воздушного компрессора | GCU11 | |
| Объём ресивера | 25 л | ||
| Производительность (при 8 бар) | 1м³/мин | ||
| Электрическая система | Установленная мощность | 85,5 кВт | |
| Мощность главного двигателя | 75 кВт | ||
| Напряжение | 380 В (настраивается) | ||
| Гидравлическая система | Объём масляного бака | 180 л | |
| Фильтрация | 10 мкм | ||
| Шасси | Двигатель | Дизельный двигатель Yanmar | |
| Номинальная выходная мощность (2200 об/мин) | 53,7 кВт | ||
| Крутящий момент (1650 об/мин) | 308 Н·м | ||
| Объем топливного бака | 55 л | ||
| Угол поворота рулевого управления | ±35° | ||
| Фильтр выбросов | DOC+DPF | ||
| Длина кабеля | 70 м | ||
Huatai — китайская компания, специализирующаяся на разработке и серийном производстве бурового оборудования. С момента своего основания в 2000 году наша компания занимается производством бурового оборудования и обеспечением высочайшего уровня обслуживания клиентов для ряда предприятий, работающих в горнодобывающей, металлургической и фундаментостроительной отраслях.
Компания Huatai уже на протяжении 20 лет непрерывно привносит инноваций в область подземной добычи и бурения. Сегодня наша продуктовая линейка включает более 30 типов машин для бурения горных пород, которые можно разделить на три категории: оборудование для подземных горных работ, оборудование для добычи угля и буровые установки для бурения стволов. Годы нашего постоянного роста и совершенствования привели к значительным достижениям в китайской индустрии буровых машин, повышению безопасности, эффективности и рентабельности подземных горных работ и работ по строительству туннелей.
Буровая установка с вертикальным стволом серии GYSJZ – это высокопроизводительная буровая установка, которая идеально подходит для глубокого вертикального бурения в твердых породах. Оснащенная мощным 132-киловаттным двигателем и тремя гидравлическими приводами, она обеспечивает бурение диаметром от 4 до 6 метров.
Подробнее +
Буровая установка для бурения вала YSJZ специально разработана для строительства вертикальных стволов в шахтах по добыче железной руды и цветных металлов. Установка данного типа является отличной альтернативой для использования в горнодобывающих и подземных строительных проектах, где другие методы бурения не могут быть применены из-за их технических или экономических ограничений.
Подробнее +
Буровая установка с вертикальным стволом серии SJZ - это специальное оборудование для бурения взрывных скважин при строительстве вертикального ствола. Она подходит для широкого диапазона диаметров вала и отличается гибкостью эксплуатации, точным позиционированием и безопасностью.
Подробнее +
Специально разработанный для бурения в породах средней твёрдости, гидравлический перфоратор RC600 обеспечивает мощную и точную работу в широком спектре сложных задач. Благодаря прочной конструкции и универсальности он идеально подходит для поддерживающего бурения в подземных рудниках, установки анкерных болтов, строительства автомагистралей, мостов и сложных зданий.
Подробнее +