HT91-S — это специализированная гидравлическая анкерная буровая установка, предназначенная для монтажа и обслуживания кабельных анкеров в подземных горных выработках. Она играет ключевую роль в укреплении нестабильных пород, фиксируя кабельные анкеры и формируя единую несущую структуру. Такое армирование эффективно перераспределяет нагрузки, обеспечивает высокую устойчивость к растяжению, снижает риск обрушения кровли и создаёт безопасные условия для ведения подземных работ.
Передовая гидравлическая система в сочетании с прочной конструкцией обеспечивает надёжную и эффективную работу при выполнении крепёжных задач в глубоких шахтах и тоннелях.
Укрепите устойчивость выработок с помощью решения, которое стабилизирует слабые породы, упрощает монтаж кабельных анкеров и повышает безопасность и управляемость крепёжных процессов.
| Буровая установка | Рабочая зона покрытия | 6000×7000мм |
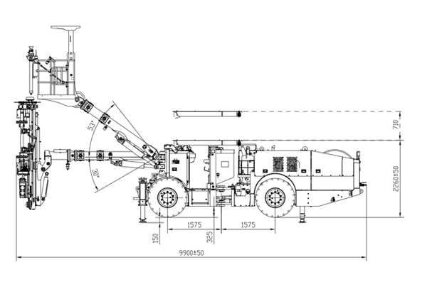
| Габариты (в транспортном положении) | 10800×1980×2500 мм | |
| Габариты (в рабочем положении) | 11600×2670×3300 мм | |
| Дорожный просвет | 325 мм | |
| Мин. радиус поворота | Внутри 3300 мм Снаружи 7000 мм | |
| Преодолеваемый уклон | 14° | |
| Скорость движения | ≤10 км/ч | |
| Масса | 19500±500кг | |
| Буровой молот | Модель | RC1200 |
| Ударная мощность | 14 кВт | |
| Частота удара | 100 Гц | |
| Макс. ударное давление | 180 бар | |
| Система вращения | Независимое вращение | |
| Адаптер хвостовика | Р32 | |
| Диаметр бурения | Ø32мм | |
| Подача | Общая длина | 3286 мм |
| Ход подачи | 975 мм | |
| Усилие подачи | 13 кН | |
| Угол наклона подачи | Вниз 90°, вверх 5° | |
| Угол поворота подачи | ±180° | |
| Компенсация подачи | 900 мм | |
| Стрела | Телескопическое выдвижение стрелы | 1250 мм |
| Угол поворота | ±35° | |
| Глубина бурения | 10000мм | |
| Длина буровой штанги | 1200/1700 мм | |
| Гидравлическая система | Макс. смещение | 100 + 50 + 16 мл/об |
| Мощность главного двигателя (2500 об/мин) | 55 кВт | |
| Производительность компрессора (8 бар) | 1м³/мин | |
| Производительность водяного насоса (12 бар) | 4м³/ч | |
| Макс. длина кабеля | 100 м (диаметр примерно 45 мм) | |
| Шасси | Двигатель | Дизельный двигатель Cummins |
| Номинальная выходная мощность (2200 об/мин) | 81 кВт | |
| Крутящий момент (1650 об/мин) | 480 Н·м | |
| Угол качания заднего моста | 8° | |
| Угол поворота рулевого управления | 40° |
Huatai — китайская компания, специализирующаяся на разработке и серийном производстве бурового оборудования. С момента своего основания в 2000 году наша компания занимается производством бурового оборудования и обеспечением высочайшего уровня обслуживания клиентов для ряда предприятий, работающих в горнодобывающей, металлургической и фундаментостроительной отраслях.
Компания Huatai уже на протяжении 20 лет непрерывно привносит инноваций в область подземной добычи и бурения. Сегодня наша продуктовая линейка включает более 30 типов машин для бурения горных пород, которые можно разделить на три категории: оборудование для подземных горных работ, оборудование для добычи угля и буровые установки для бурения стволов. Годы нашего постоянного роста и совершенствования привели к значительным достижениям в китайской индустрии буровых машин, повышению безопасности, эффективности и рентабельности подземных горных работ и работ по строительству туннелей.
Буровая установка с вертикальным стволом серии GYSJZ – это высокопроизводительная буровая установка, которая идеально подходит для глубокого вертикального бурения в твердых породах. Оснащенная мощным 132-киловаттным двигателем и тремя гидравлическими приводами, она обеспечивает бурение диаметром от 4 до 6 метров.
Подробнее +
Буровая установка для бурения вала YSJZ специально разработана для строительства вертикальных стволов в шахтах по добыче железной руды и цветных металлов. Установка данного типа является отличной альтернативой для использования в горнодобывающих и подземных строительных проектах, где другие методы бурения не могут быть применены из-за их технических или экономических ограничений.
Подробнее +
Буровая установка с вертикальным стволом серии SJZ - это специальное оборудование для бурения взрывных скважин при строительстве вертикального ствола. Она подходит для широкого диапазона диаметров вала и отличается гибкостью эксплуатации, точным позиционированием и безопасностью.
Подробнее +
Специально разработанный для бурения в породах средней твёрдости, гидравлический перфоратор RC600 обеспечивает мощную и точную работу в широком спектре сложных задач. Благодаря прочной конструкции и универсальности он идеально подходит для поддерживающего бурения в подземных рудниках, установки анкерных болтов, строительства автомагистралей, мостов и сложных зданий.
Подробнее +