Гидравлическая буровая установка HT71-A - это машина для бурения малых и средних шахт, оснащённая каруселью для буровых штанг. Она предназначена для бурения горизонтальных и веерообразных скважин на вертикальных и наклонных плоскостях в подземных шахтах и туннелях.
Гидравлическая буровая установка также оснащена интерфейсом для удалённого доступа, что позволяет удобно передавать данные и повышать общую производительность подземных работ.
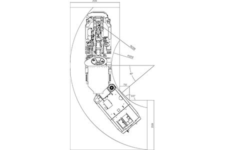
| Гидравлическая буровая установка | Размеры поперечного сечения | 3800×3800 - 6000×6000мм | |
| Габаритные размеры (Д×Ш×В) | 9950×1980×2868мм | ||
| Дорожный просвет | 330мм | ||
| HT71(CYTC76A) | Мин. радиус поворота | Внутри 3250 мм / Снаружи 6300 мм | |
| Преодолеваемый уклон | 14° | ||
| Общий вес | 20000кг | ||
| Гидравлический дрифтер | Модель | RC2200 | YYG22U |
| Ударная мощность | 21кВт | 22кВт | |
| Частота удара | 55Гц | 55Гц | |
| Ударное давление | 200бар | 220бар | |
| Система вращения | Независимое вращение | Независимое вращение | |
| Скорость вращения | 0-285 об/мин | 0-220 об/мин | |
| Макс. вращающий момент | 720 Н·м | 1050 Н·м | |
| Подача | Модель | 1220 буровых штанг | 1525 буровых штанг |
| Длина подачи | 3160мм | 3465мм | |
| Вес | 1300кг | 1400кг | |
| Усилие подачи | 14 кН | 14 кН | |
| Механизированная глубина бурения | 35м | 42.6м | |
| Подходящая высота туннеля | Длина подачи +240мм | Длина подачи +240мм | |
| Емкость хранения штанг | 27+1 | 27+1 | |
| Угол наклона подачи | +25° / -50° | ||
| Угол поворота | ±180° | ||
| Ход компенсации | 635мм | ||
| Вес стрелы | 2200кг | ||
| Электрическая система | Модель | RC2200 / YYG22U | |
| Двигаль | 91кВт | ||
| Мощность главного двигателя | 75кВт | ||
| Напряжение | 380 В (по индивидуальному заказу) | ||
| Частота | 50Гц | ||
| Компрессор | Ёмкость воздушного бака | 60л | |
| Объем воздуха ( 8 бар) | 1.5м³/мин | ||
| Гидравлическая система | Ёмкость масляного бака | 235л | |
| Точность фильтрации | 10мкм | ||
| Датчик | Датчик дифференциального давления для гидравлического фильтра | ||
| Насос | Ручной масляный насос / Электронный масляный насос | ||
| Шасси | Двигатель | Дизельный двигатель Cummins IV | |
| Номинальная мощность (2500 об/мин) | 81кВт | ||
| Крутящий момент (1650 об/мин) | 480Н·м | ||
| Ёмкость топливного бака | 65л | ||
| Очистка выхлопных газов | DOC+DPF | ||
| Преодолеваемый подъем | 14° | ||
| Длина электрического кабеля | 70м | ||
| Диаметр катушки кабеля | 1130мм | ||
| Угол поворота руля | ±40° | ||
Huatai — китайская компания, специализирующаяся на разработке и серийном производстве бурового оборудования. С момента своего основания в 2000 году наша компания занимается производством бурового оборудования и обеспечением высочайшего уровня обслуживания клиентов для ряда предприятий, работающих в горнодобывающей, металлургической и фундаментостроительной отраслях.
Компания Huatai уже на протяжении 20 лет непрерывно привносит инноваций в область подземной добычи и бурения. Сегодня наша продуктовая линейка включает более 30 типов машин для бурения горных пород, которые можно разделить на три категории: оборудование для подземных горных работ, оборудование для добычи угля и буровые установки для бурения стволов. Годы нашего постоянного роста и совершенствования привели к значительным достижениям в китайской индустрии буровых машин, повышению безопасности, эффективности и рентабельности подземных горных работ и работ по строительству туннелей.
Буровая установка с вертикальным стволом серии GYSJZ – это высокопроизводительная буровая установка, которая идеально подходит для глубокого вертикального бурения в твердых породах. Оснащенная мощным 132-киловаттным двигателем и тремя гидравлическими приводами, она обеспечивает бурение диаметром от 4 до 6 метров.
Подробнее +
Буровая установка для бурения вала YSJZ специально разработана для строительства вертикальных стволов в шахтах по добыче железной руды и цветных металлов. Установка данного типа является отличной альтернативой для использования в горнодобывающих и подземных строительных проектах, где другие методы бурения не могут быть применены из-за их технических или экономических ограничений.
Подробнее +
Буровая установка с вертикальным стволом серии SJZ - это специальное оборудование для бурения взрывных скважин при строительстве вертикального ствола. Она подходит для широкого диапазона диаметров вала и отличается гибкостью эксплуатации, точным позиционированием и безопасностью.
Подробнее +
Специально разработанный для бурения в породах средней твёрдости, гидравлический перфоратор RC600 обеспечивает мощную и точную работу в широком спектре сложных задач. Благодаря прочной конструкции и универсальности он идеально подходит для поддерживающего бурения в подземных рудниках, установки анкерных болтов, строительства автомагистралей, мостов и сложных зданий.
Подробнее +